Nos avis clients
Nos avis clients
Nous suivre

A VENDRE EN EXCLUSIVITÉ à Paris 16ème, à proximité ...

Paris (75016)
Réf : HW80-607
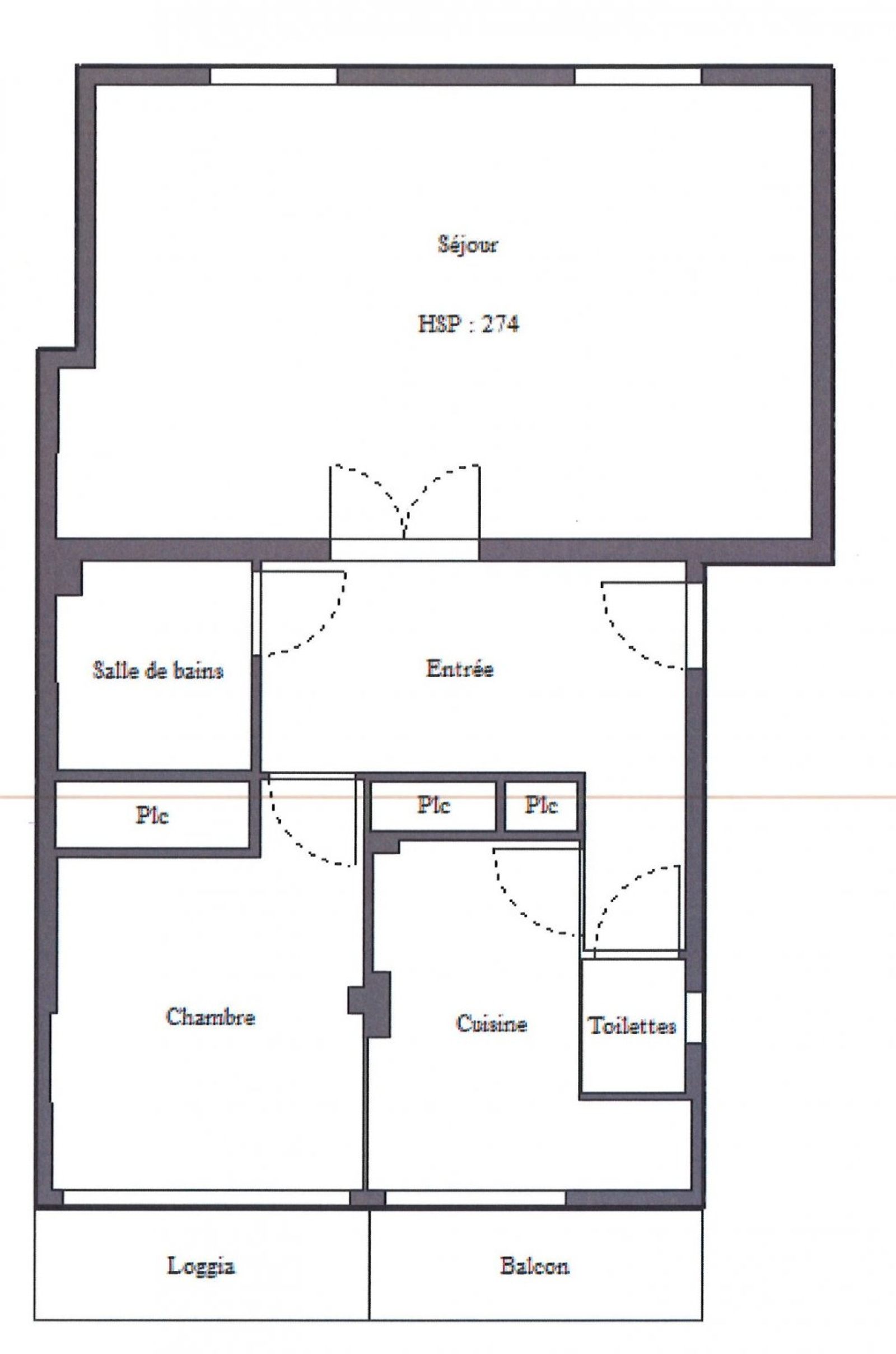
A VENDRE EN EXCLUSIVITÉ à Paris 16ème, à proximité du métro Mirabeau, au 1er étage d'un immeuble ancien, un appartement traversant, d'une surface de 65,40 m2 au sol (62,60 m2 loi Carrez) comprenant : une entrée avec placard, un double séjour avec cheminée sur rue orienté Ouest, une cuisine aménagée avec balcon donnant sur le petit jardin de l'immeuble, une chambre avec loggia fermée également sur jardin orientée Est, une salle de bains, des wc séparés et une cave. A rafraichir
Prix du bien 535 000 €
Pièce(s) 3
Chambre(s) 1

Caractéristiques du bien

Caractéristiques Valeurs
Code postal 75016
Surface habitable (m²) 65 m²
Nombre de chambre(s) 1
Nombre de pièces 3
Etage 1
Ascenseur OUI
Nb de salle de bains 1
Mode de chauffage Autre
Type de chauffage Autre
Format de chauffage Collectif
Cave OUI

Infos financières

Caractéristiques Valeurs
Prix de vente 535 000 €
Les honoraires d'agence seront intégralement à la charge du vendeur